Casa Inacabada, amplo terreno - Projeto
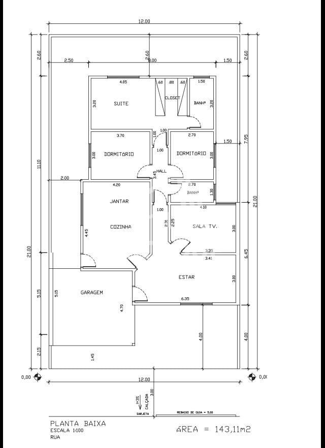
Ref: CA3345, bairro Jardim São Sebastião, 3 dormitórios, sendo 1 suíte, 2 banheiros, 2 vagas de garagem, área construída 143,11 m², terreno 252,00 m²Compartilhar:
R$ 280.000
3 Dormitórios
1 Suíte
2 Banheiros
2 Vagas
Descrição do Imóvel
OPORTUNIDADE PARA CONSTRUIR A CASA DOS SEUS SONHOS
.
.
.
Se você busca por um lar para chamar de seu e deseja colocar a mão na massa para personalizá-lo do seu jeito, esta casa inacabada no bairro Jardim São Sebastião, em Presidente Prudente / SP, é a oportunidade perfeita para você! Com uma área construída de 143,11 m² em um terreno de 252,00 m², este imóvel oferece um espaço amplo e versátil para você soltar a imaginação e transformá-lo no lar dos seus sonhos.
Com 3 dormitórios, sendo 1 suíte, e 2 banheiros, esta casa inacabada possui uma estrutura sólida e pronta para receber os toques finais que refletirão a sua personalidade e estilo de vida. Imagine-se cozinhando em uma cozinha planejada do jeitinho que sempre quis, relaxando em uma suíte aconchegante e desfrutando de momentos especiais com sua família e amigos em uma sala de estar ampla e confortável. A casa conta também com garagem pra 2 carros.
Por um valor de apenas R$ 280.000,00, este imóvel é uma oportunidade única de investir em um espaço que se tornará o cenário de inúmeras memórias felizes.
Não perca a chance de criar um lar sob medida para você e sua família. Agarre essa oportunidade e transforme esta casa inacabada no refúgio perfeito que você sempre sonhou!
.
Agende uma visita e se surpreenda!
Vídeo
Central de Negócios
Para ter mais informações sobre este imóvel ligue:
Presidente Prudente (Matriz)
(18) 3217-4828
Avenida Washington Luiz, 1506
Centro - Presidente Prudente
(18) 32174-828
destaqueimobiliariapp@gmail.com
Regente Feijó (Filial)
(18) 3279-2599
Avenida Clemente Pereira, 900
Centro - Regente Feijó - SP
Santo Anastácio (Filial)
(18) 3263-2363
Av Osvaldo Cruz, 664- Centro
Centro - Santo Anastácio - SP
Gostou do imóvel? Agende já uma visita exclusiva conosco! Teremos todo o prazer em te atender!
Fale agora Conosco
Imóveis em Jardim São Sebastião, Presidente Prudente
Casa Nova
Oportunidade de Casa Nova para Venda no bairro Jardim São Sebastião, um bairro com excelente localização, próximo a...
#CAS06
Casa
Excelente casa à venda no bairro Jardim São Sebastião, próximo a pet shops, restaurantes, comércios e serviç...
#Cas006


























